Группа Аквилон продолжает участие в программе комплексного развития территорий
|
Общество: 22.09.2025 12:58 Просмотров: 1190 |
По итогам аукциона, проведенного администрацией Архангельска, Группа Аквилон по договору КРТ за свой счет расселит жителей 3 ветхих деревянных домов. Это уже четвертый проект компании в рамках программы КРТ в столице Поморья.
Речь идет о трех несмежных участках. В течение 1 года Группа Аквилон за свой счет должна расселить 3 деревянных дома – это 24 квартиры общей площадью 1335 кв. м, в которых зарегистрировано 58 человек. Общий объем инвестиций по данной КРТ составит 970 млн рублей, включая новое строительство.

На первой территории расселяется дом на ул. П. Усова, 5. Данный участок площадью 0,04 га остается муниципальным и по градостроительной документации предназначается для размещения детсада на 280 мест.

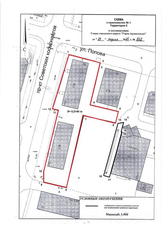
На второй территории будет расселен дом на пр. Советских космонавтов, 112. Участок площадью 0,21 га предназначен для использования в целях строительства новых зданий находящегося рядом Архангельским морским кадетским корпусом.

На третьей территории расселяется дом на ул. Карельская, 53/пр. Советских космонавтов, 183. Участок площадью 0,37 га примыкает к кварталу ул. Комсомольская – ул. Самойло - ул. Карельская, где Группа Аквилон в рамках программы КРТ первой в Архангельске полностью расселила 8 деревянных домов - 4420 кв. м жилой площади. Договор с муниципалитетом был заключен в ноябре 2023 года, а сам процесс расселения занял меньше года. Кроме того, для комплексного развития здесь был выкуплен у собственников частный дом с земельным участком. В сентябре здесь строительство 1-й очереди нового жилого комплекса - двух домов переменой этажности на ул. Самойло (в районе пересечения с ул. Карельской) и на ул. Комсомольская. Вторая очередь нового ЖК проектируется в квартале ул. Комсомольская - пр. Советских Космонавтов - ул. Карельская - ул. Самойло. Чтобы осуществить комплексную застройку квартала Группа Аквилон сейчас расселит еще один дом на ул. Карельская, 53, что позволит дополнительно построить 9,3 тыс. кв. м.
- Группа Аквилон продолжает участие в программах комплексного развития территорий в Архангельске и Северодвинске. За счет собственных средств застройщика расселяется большой объем аварийного и ветхого жилья. Это серьезная финансовая и социальная нагрузка, но мы берем на себя эти обязательства и успешно их выполняем. Все аварийные дома в рамках договоров КРТ расселяются в предусмотренные сроки. Со жителями мы работаем индивидуально, все собственники и наниматели получают достойное жилье, либо денежную компенсацию, - пояснил председатель Правления Группы Аквилон Александр Фролов.
В Архангельске помимо уже расселенной территории на ул. Комисомольская – ул. Карелская, Группа Аквилон реализует еще два договора КРТ.
В квартале на ул. Попова - пр. Обводный канал - ул. Логинова компания расселяет 16 деревянных домов общей площадью 7,9 тыс. кв. м. Пять домов первого этапа уже расселены, в трех домах второго этапа завершается расселение последних пяти квартир.
В квартале на ул. Гайдара - пр. Ломоносова - ул. Вологодской завершается расселение двух деревянных домов, осталось три жилых помещения.
Отметим также, что в Северодвинске в рамках трех КРТ Группа Аквилон расселяет 14 домов, 8 из них уже полностью расселены. Еще один аукцион на КРТ компания выиграла на прошлой неделе, по договору, который будет заключен с муниципалитетом предстоит расселить 11 домов.
Общий объем инвестиций Группы Аквилон по программам КРТ в регионе составляет более 31 млрд. рублей, планируемый объем строительства нового жилья на данных участках составляет 290 тыс. кв. м.
Общий объем строительства нового жилья, которое Группа Аквилон в настоящее время осуществляет в Архангельске и Северодвинске составляет порядка 500 тыс. кв. м. В планах на ближайшие годы – порядка 500 тыс. кв. м с общим объемом инвестиций около 50 млрд. рублей.

О компании
Группа Аквилон - одна из ведущих девелоперских компаний, предоставляющих полный спектр услуг на рынке недвижимости - создана в Архангельске 13 октября 2003 года. Компания является 11-кратным обладателем Золотого знака «Надежный застройщик России» в 2014-24 годах. Также Группа Аквилон входит в ТОП-20 Единого реестра застройщиков России, пятерку крупнейших строительных компаний Санкт-Петербурга и возглавляет рейтинг девелоперов Архангельской области.
В активе холдинга более 250 объектов различного назначения общей площадью более 2,5 млн. кв. м: современных жилых комплексов с подземными паркингами, детсадов, школ, многофункциональных торгово-развлекательных и бизнес-центров. Все здания были введены в эксплуатацию без замечаний со стороны органов государственного строительного надзора и точно в срок. Сегодня компания представлена в Архангельске, Северодвинске, Санкт-Петербурге и Ленинградской области, а также Москве. Кроме того Группа Аквилон приступила к работе в Иваново, Ярославле и Нижнем Новгороде. В портфеле холдинга – более 2,5 млн кв. м строящейся недвижимости.
Конечным продуктом, предлагаемым фирмой на рынке, являются квартиры и объекты коммерческой недвижимости. Партнерами Группы Аквилон являются ведущие финансово-кредитные учреждения РФ, которые предлагают клиентам холдинга специальные условия на кредитные продукты.
Центральный офис в Архангельске:
ул. Попова, 14, Торгово-деловой центр «Аквилон», 6 этаж.
Телефон/факс: (8182) 65-00-08
Электронная почта: Этот адрес электронной почты защищён от спам-ботов. У вас должен быть включен JavaScript для просмотра.
Офис в Северодвинске:
Ул. Ломоносова, 85, к.1 (1-й этаж), телефон: (8184) 52-00-00











